UMPPRF
Non, ce n’est pas le nom d’un nouveau parti politique !
C’est presque le nom du prochain char de System’D…
Un monde presque pas r’fait
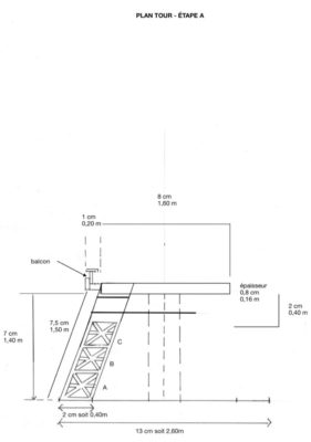
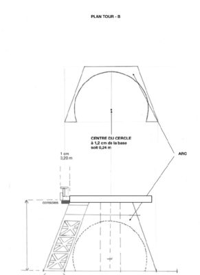
Cette première étape de la maquette a été précédée de l’élaboration du projet mutualisé par l’équipe system’D, suivie du dessin quadrillé en 2D.
- juillet 2018 – Élaboration du projet.
- 1 au 15 Août 2018 – Première partie de la construction de la maquette : plans et construction des principaux éléments.
La maquette 3D permet de conforter le projet, de lui donner vie et de mettre en évidence les problèmes de structure, disposition, perspective et équilibre.



































Commentaires récents